Baubeschrieb:
Ausgangslage: Die Parzelle eignet sich vorzüglich fürs Wohnen. Hervorzuheben sind die Ausrichtung nach Süden und die besondere Sicht ins Tal nach Westen und Nordwesten. Die Lage ist ausgesprochen ruhig, und der als „Wald“ bezeichnete Baumgürtel säumt das Grundstück talseitig.
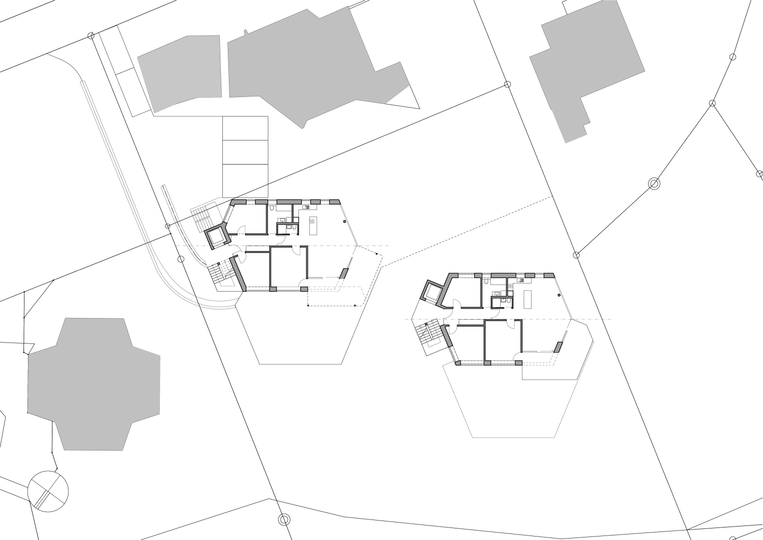
- Die relativ steile Hanglage wird genutzt, um den Wohnungen die besondere Aussicht zu ermöglichen.
- Durch den Waldabstand wird die bebaubare Fläche stark eingeschränkt. Dies hat eine Verdichtung im oberen Bereich der Parzelle zur Folge.
- Die nach anthroposophischen Formprinzipien gestalteten Gebäude auf den Nachbarparzellen prägen das städtebauliche Umfeld. Ihre Ausrichtung ist nicht eindeutig definiert. Durch die verschiedenen Winkel werden mehrere Himmelsrichtungen begünstigt. Die Neubauten gliedern sich mit ihrer 6-eckigen Grundform optimal in das polygonale Umfeld ein.
- Die neuen Gebäude sind entlang der bestehenden Höhenkurven angeordnet. Diese verlaufen tendenziell schräg zur rechteckigen Grundstücksform. Somit sind die Gebäude stark in die natürliche Topografie eingebunden. Talseitig wird der Bereich vor den Wohnungen ausgeebnet. Ansonsten werden die Terrainveränderungen und die Stützmauern auf ein Minimum beschränkt. Auf Hecken und Zäune wird gänzlich verzichtet.
- Die neuen Gebäude sind in der Höhe und in der Lage gestaffelt, sodass sie sich gegenseitig die Sicht nicht verdecken. Sie sind mit grossen, verglasten Giebelseiten nach Südwesten und mit ausladenden Balkonen zusätzlich nach Nordwesten ausgerichtet.
- Die aktuellen Sichtverhältnisse der umliegenden Gebäude werden soweit wie möglich respektiert
Erschliessung, Wege und Zugänge: Die Parzelle wird hauptsächlich über die Zufahrtsrampe erschlossen. Dadurch wird der Siedlung ein Maximum an Grünfläche zur Verfügung gestellt. Einen zusätzlichen Zugang über den Fussweg zwischen Ruchti-Weg und Albert Steffen-Weg ermöglicht den Fussgängern, von der Talseite zu den Häusern zu gelangen. Über lediglich zwei Haupteingänge gelangt man zu den Wohnungen.
Nutzungsbonus: Durch eine Verbesserung der Energieeffizienz um 40% kann ein Bonus von 10% für die Ausnützungsziffer in Anspruch genommen werden. Bessere Dämmung bedeutet auch grössere Wandquerschnitte und folglich weniger Nutzfläche. Bei der Berechnung der Anzahl Parkplätze wurde auf diesen Umstand Rücksicht genommen.
Materialisierung: Die unteren beiden Geschosse sollen in Massivbauweise ausgeführt werden und verputzte Fassaden aufweisen. Die oberen Geschosse sind in Massivholzbauweise (Nur-Holz) geplant und werden mit einer vertikalen Holzschalung ausgestattet. Die offenen Treppenhäuser werden in Ortbeton ausgeführt.
Energie: Die Wohnungen werden über eine Wärmepumpe, welche die Energie drei Erdsonden entnimmt, je nach Bedarf beheizt oder gekühlt. Mit einer maximalen Fläche an PV auf dem Dach soll der Strombedarf weitgehend gedeckt und die Energiebilanz verbessert werden.
Versickerung: Durch drei 6000-Liter Tanks wird das anfallende Meteorwasser für die Gartenbewässerung, WC-Spülung und für die Waschmaschinen genutzt. Überschüssiges Regenwasser wird nach Möglichkeit versickert.
Aktuell:
Es laufen rechtliche Abklärungen mit den Behörden.
















