Baubeschrieb:
Das Projekt: Alle Beteiligten sind sich einig, dass das Haus so baubiologisch wie möglich geplant und gebaut werden soll. Bio-logisch versuchen wir wörtlich zu nehmen: Lebens-logisch, vom Leben her denken.
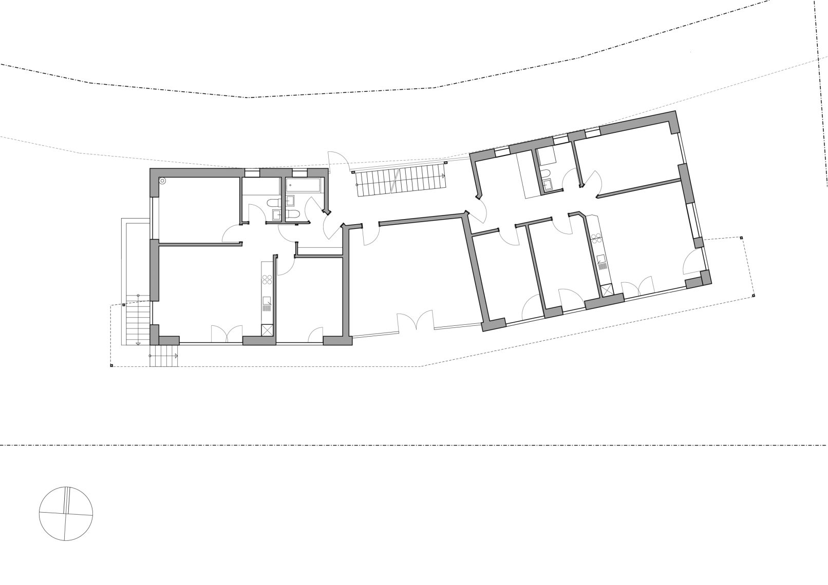
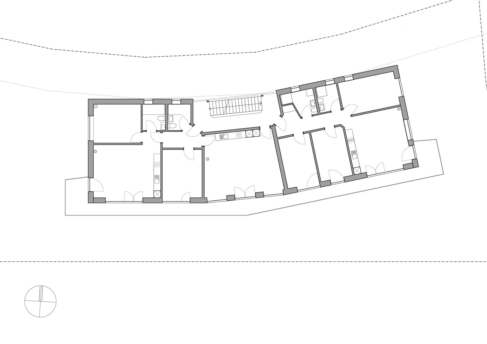
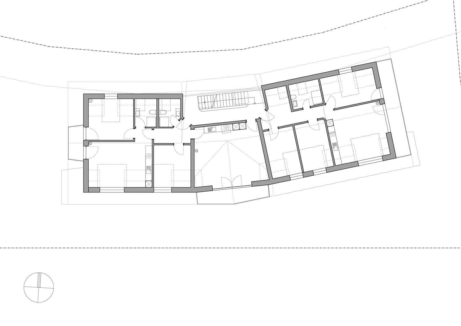
So entstand ein Projekt, das verschiedenen Bedürfnissen gerecht werden kann. Es gibt Gemeinschaftsräume und verschieden grosse Wohneinheiten, die auch eine gewisse Flexibilität ermöglichen.
Städtebauliche Kriterien: Das Grundstück befindet sich in einer locker besiedelten, ländlichen Gegend, die als Vorzone von Zollbrück bezeichnet werden kann und sich dadurch charakterisiert, dass die Häuser wie eine Kette entlang der Strasse angeordnet sind. Prägend für das Ortsbild ist der Emmentaler Bauernhof im Osten, welcher unter Denkmalschutz steht.
Der Neubau integriert sich durch folgende Merkmale in das bestehende Orts- und Landschaftsbild:
- Das Satteldach ist die traditionelle und am Häufigsten verwendete Dachform in der Umgebung.
- Die Volumetrie des Gebäudes ist vergleichbar mit derjenigen des Bauernhofs im Osten und des Schulhauses im Westen des Grundstücks.
- Das Gebäude übernimmt mit seinem Hauptdach die Ausrichtung vom Bauernhof und vom Schulhaus und gliedert sich dadurch harmonisch in die Umgebung ein.
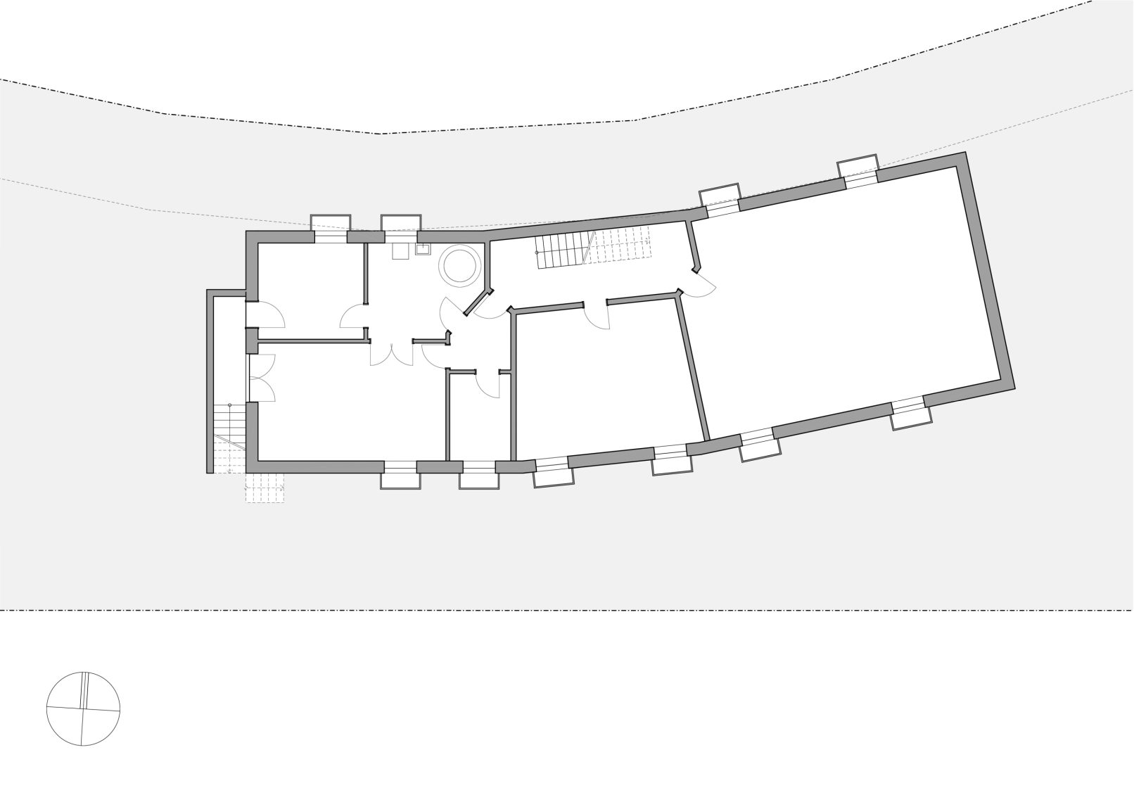
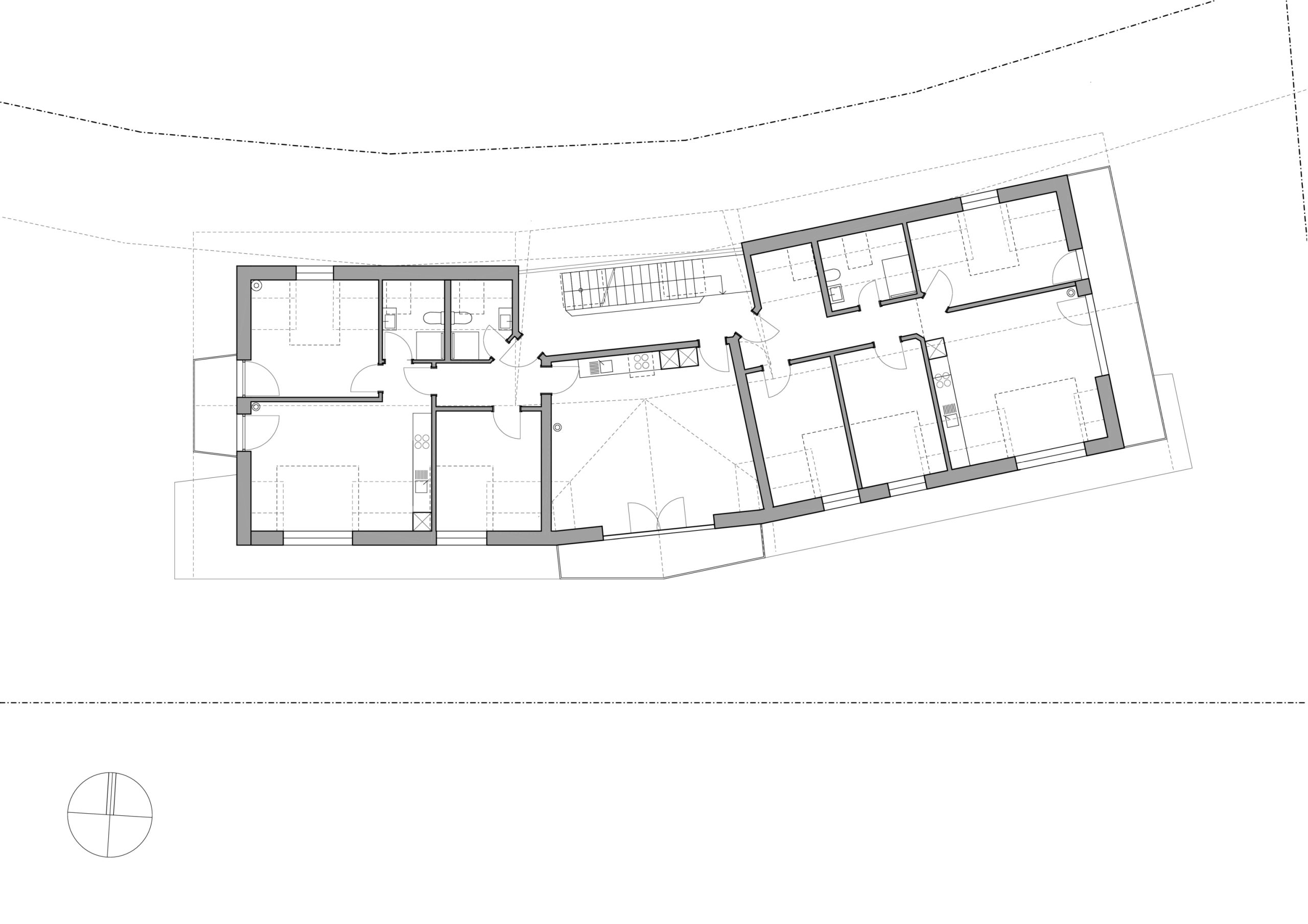
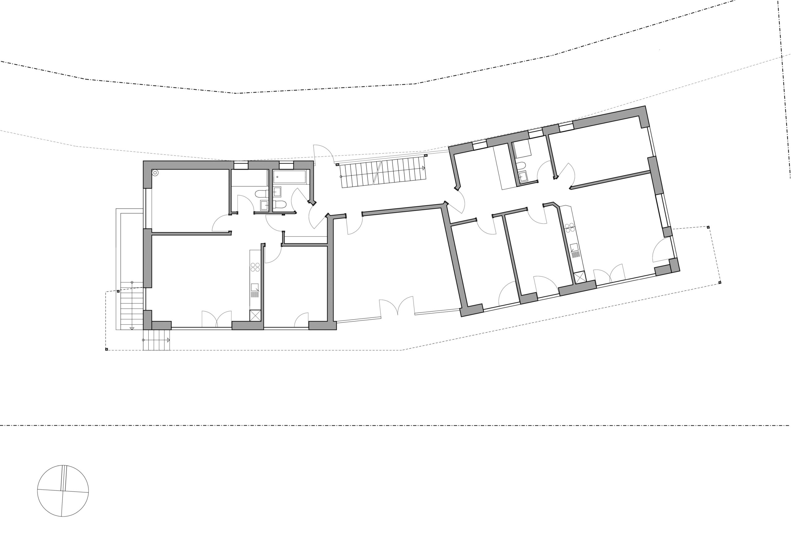
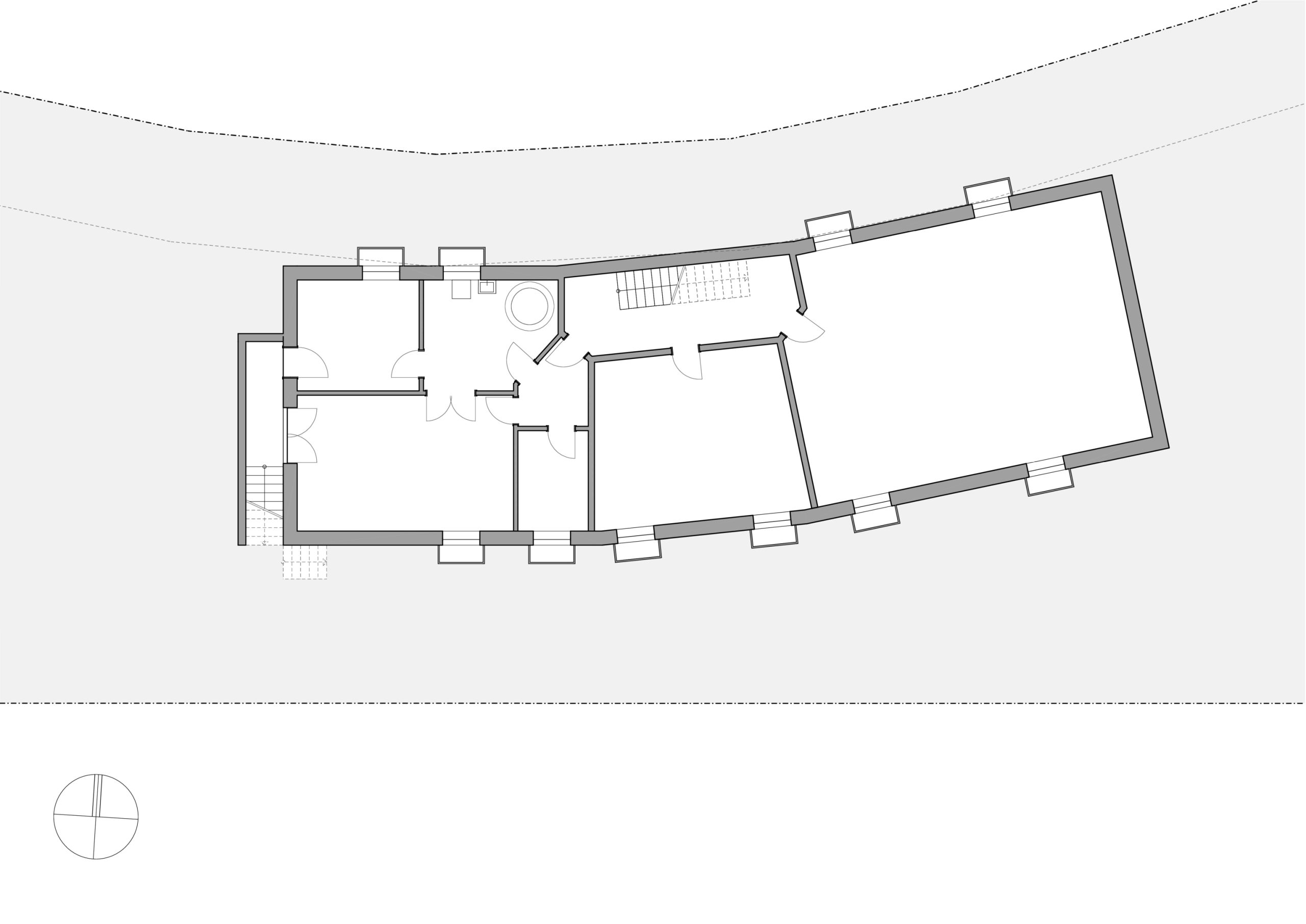
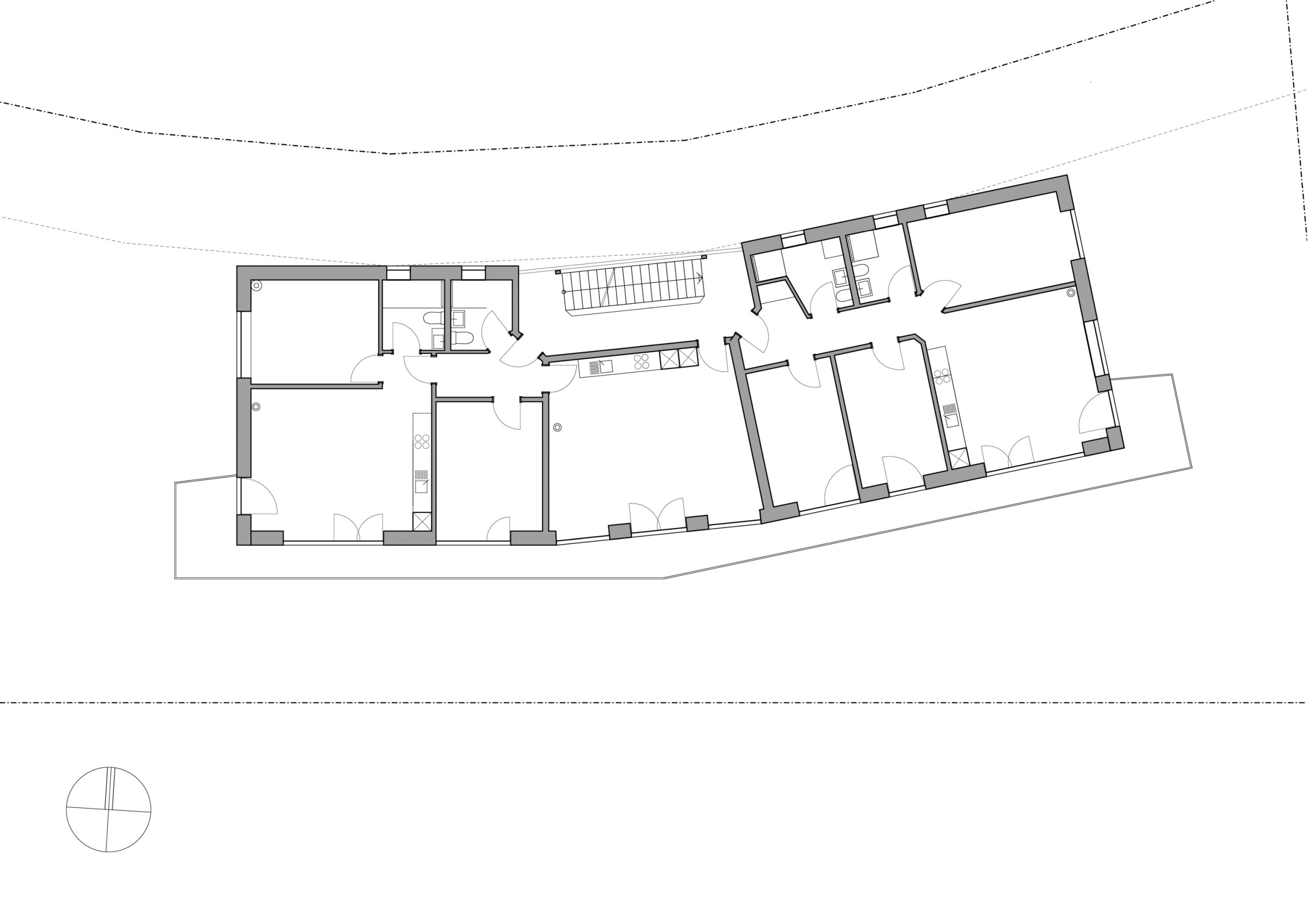
Raumaufteilung: Der leicht geneigte Hang mit dem Grabenmattweg im Norden gibt den Blick frei in Richtung Landwirtschaftszone und begünstigt eine Orientierung der Wohnräume nach Süden. Mit diesen Voraussetzungen haben wir folgendes Grundkonzept erarbeitet:
- Eingang und Treppenhaus an der Nordseite und in der Mitte des Hauses
- Nasszellen und Küchen: Orientierung, wenn möglich nach Norden
- Wohn- und Schlafräume: Orientierung, wenn möglich nach Süden, in zweiter Priorität nach Osten bzw. Westen.
- Der Gemeinschaftsraum als Herzzentrum des Gebäudes bekommt eine zentrale, leicht zugängliche Position im Erdgeschoss.
Gebäudehülle & Statik: Auf das Untergeschoss und an das Treppenhaus aus Ortbeton kommen zwei Wohngeschosse und ein Dachgeschoss mit einer Gebäudehülle aus massivem Truberholz mit Holzfaserdämmung. Die Fassade wird mit sägeroher hinterlüfteter Schalung und das Dach mit naturbelassenen Ziegeln geschützt.
Mit Ausnahme von UG und Treppenhaus werden die statischen Kräfte von der massiven Fassade, Holzständern, Balken und Massivholzdecken aufgenommen.
Innenausbau: Der Innenausbau erfolgt mit Ausnahme von UG und Treppenhaus weitgehend in Holz und Lehm.
Balkone: Zur Pflege sozialer Kontakte und als Sonnenschutz im Sommer ist das Haus vor allem gegen Süden mit durchgehenden Balkonen versehen.
Wärme: 35 m2 Warmwasserkollektoren auf dem Dach und eine Stückgutheizung mit einer Leistung von 20 kW im UG dienen der Wärmeerzeugung. Verteilt wird sie über beheizbare Lehmwände und über die Böden in den Sanitärräumen.
Wasser: Um wertvolles Trinkwasser zu sparen und Niederschlagsspitzen brechen zu helfen, sammeln wir das Regenwasser in einem 6000 Liter-Tank und benutzen es zum Waschen und Spülen.
Strom: Das Dach des Carports wird mit ca. 60 m2 Photovoltaikzellen gedeckt.
Durchwegung: Die notwendigen, versiegelten Flächen und Wege sollen auf ein Minimum beschränkt werden. So-mit konzentriert sich die Durchwegung auf den Bereich zwischen Haus und Strasse. Die grösseren Abstell- und Manövrierflächen lassen die natürliche Versickerung zu.
Pflanzkonzept: Sträucher, Bodendecker und Wiesen mit einheimischen Sorten sollen zur Biodiversität beitragen und ein würdiges Pendant schaffen zum Garten der Gärtnerei «Kunterbunt» auf der anderen Seite der Grundstücksgrenze.
Aktuell:
Neueingabe Baugesuch.












