Bauherrschaft:
Benchen Klosterschule, Pharping und Abiding Heart Education, Kathmandu
zwei Baubeschrieb:
Die Benchen Monastery School in Pharping nahe Kathmandu hat zur Zeit der Projekterstellung 180 Schüler, 5 betreuende Mönche und 10 in Waldorfpädagogik geschulte, Englisch, Tibetisch und Nepali sprechende Lehrerinnen und Lehrer. Die hygienischen Bedingungen sind prekär, die Schlaf- und Wohnräume sind für die individuelle, seelische Entwicklung der Kinder ungeeignet und es gibt zu wenig Zimmer für den Unterricht, z.B. für künstlerische oder handwerkliche Fächer, für das Lehrpersonal usw.
Von Abiding Heart Education, einer buddhistischen, praxisbezogenen Lehrerausbildungsstätte in Kathmandu, wurde ich Ende 2023 angefragt, ein Projekt zu erstellen, welches Fundraising-Zwecken dienen sollte. Ich machte es zur Bedingung, die Verhältnisse und Möglichkeiten vor Ort zu studieren, und erst aufgrund der Analyse der komplexen Situation ein Projekt zu erstellen.
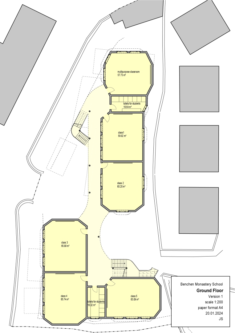
Ich bekam ein überwältigendes Raumprogramm und ein sehr enges Zeitfenster. In nur 2 Wochen sollte ein umfangreiches Schulprojekt entstehen und die Neuorganisation des bestehenden Gebäudekomplexes mit 10 Wohngruppen inkl. Unterkünften für Lehrpersonen und Mönche geplant werden. Vom Bestandsgebäude waren keine brauchbaren Pläne vorhanden.
Statt das bestehende Gebäude zu erweitern und zu erhöhen, was erhebliche statische Probleme mit sich gebracht hätte, schlug ich einen Neubau für die Schule vor. Das bestehende Gebäude sollte dann als Wohnheim umgebaut werden.
Das vorliegende Projekt wurde den Führungskräften des Klosters in Varianten vorgestellt: Eine grosse Variante mit 16 Unterrichtsräumen und eine kleine Variante mit 10 Unterrichtsräumen.
Aktuell:
Eine Realisierung ist zurzeit nicht in Sicht.










