Projektbeschrieb:
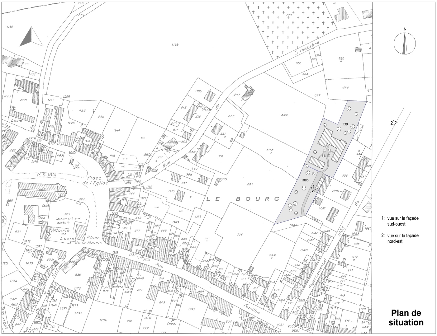
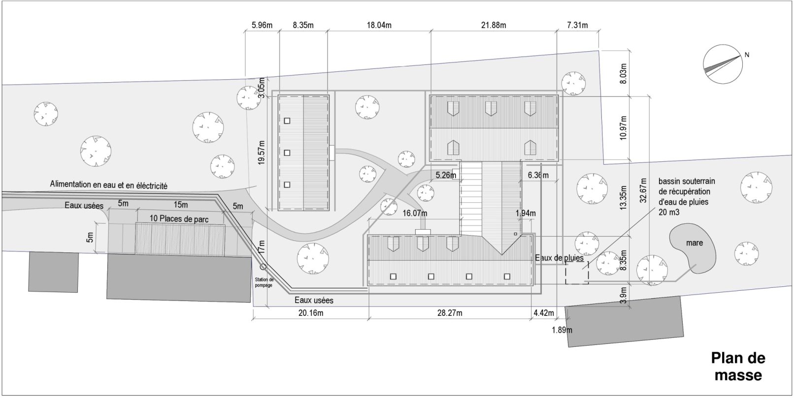
Unter grossen Opfern baute meine Bauherrschaft für sich und für kommenden Generationen ein gemeinschaftlich geführtes und selbstverwaltetes Altersheim mit der Idee, dass die Jüngeren und Fitteren die Bedürftigen pflegen sollten. Der ökologische Neubau weist 10 Einzimmerwohnungen mit je rund 50 m2 auf, zwei 3 1/2-Zimmerwohnungen, eine grosse Gemeinschaftsküche mit Wohnzimmer, einen Wintergarten, mehrere Gästezimmer, Wirtschaftsräume und einen Raum für eine auswärtige Krankenschwester. Die Lage im Dorf wurde so gewählt, dass die Wege kaum Gefälle aufweisen.
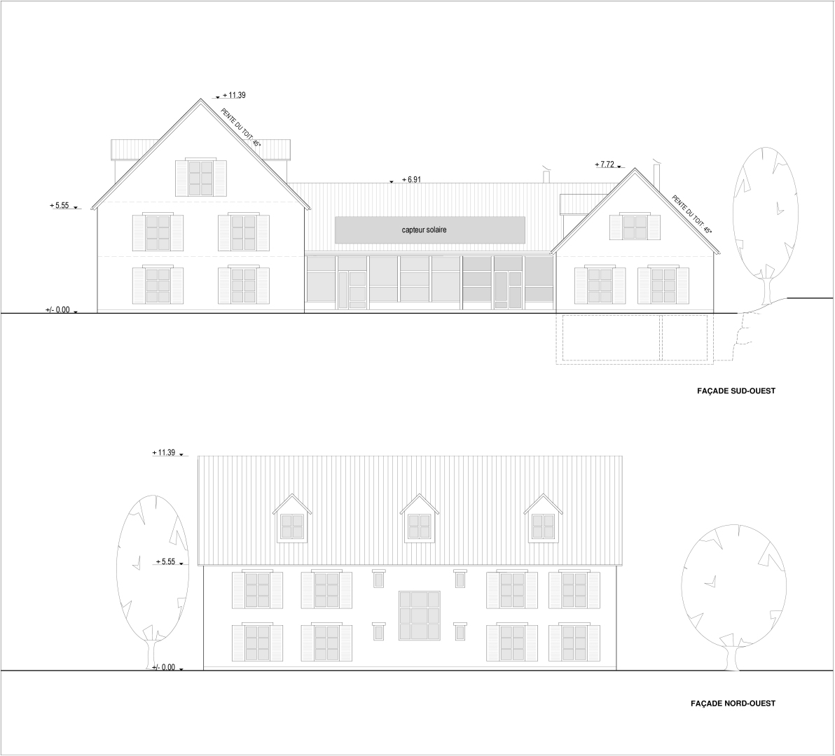
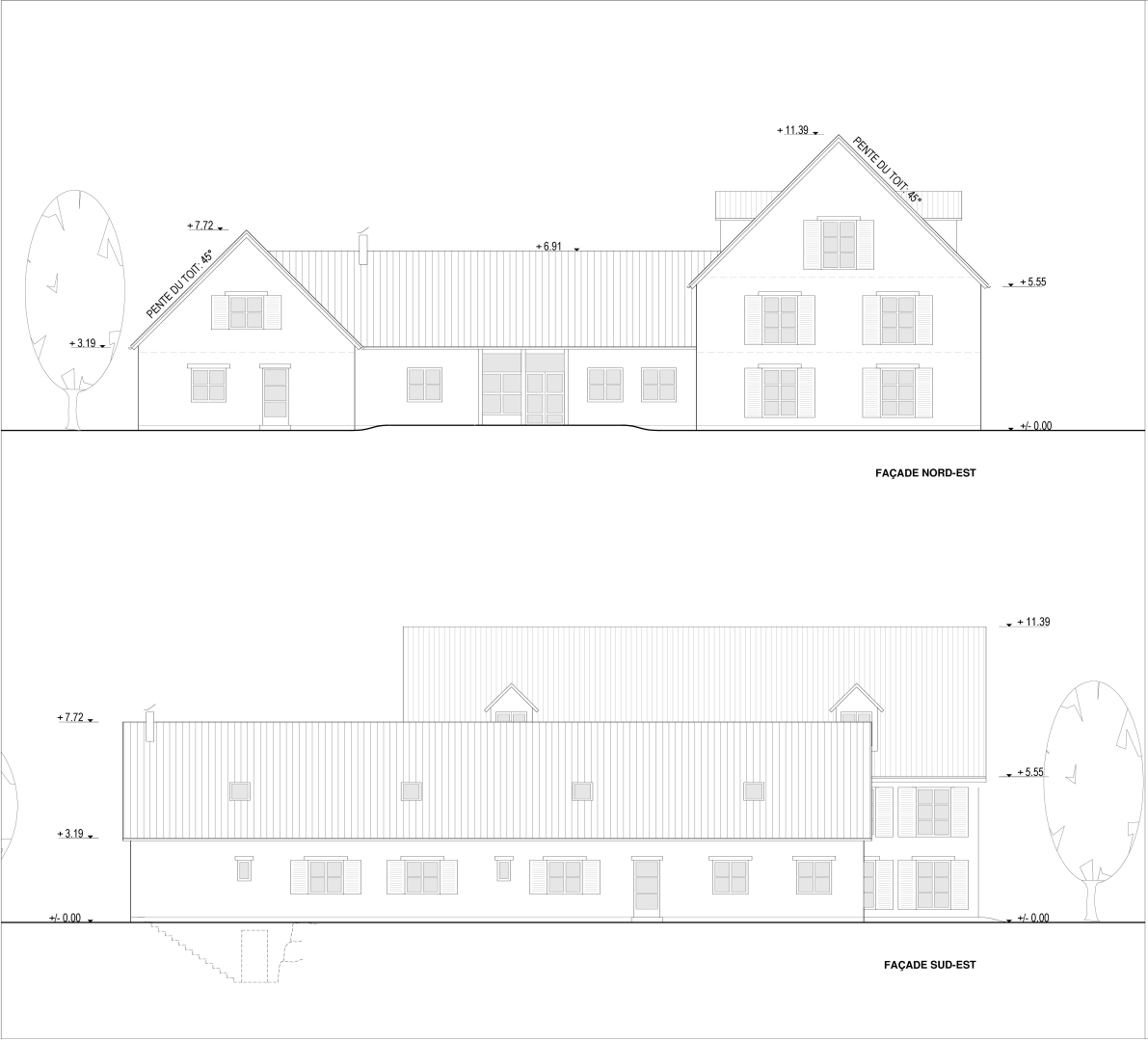
Der Verantwortliche für den Denkmalschutz verlangte, dass das Projekt wegen seiner Nähe zur historischen Dorfkirche aus dem 12. Jahrhundert strenge historische Bauprinzipien befolgt.








